Projectinformatie:
- Locatie: Kromme Ellenboogsteeg
- Gemeente: Haarlem
- Status: Vergunning verleend
- Type project: Plaatsen van een dakterras met daktuin
- Opdrachtgever: Zakelijke belegger

Opdrachtomschrijving.
Sinds de invoering van de Wet betaalbare huur ontvangen wij steeds vaker verzoeken van vastgoedbeleggers die hun panden willen uitbreiden om te kunnen voldoen aan de puntentelling voor huurwoningen.
Zo ook onze opdrachtgever aan de Kromme Ellenboogsteeg in Haarlem.
Door de toevoeging van een dakterras kon hij zijn pand optimaliseren en voldoende punten behalen om de woning rendabel te verhuren.
Aanpak en werkzaamheden.

De opdrachtgever nam eerst telefonisch contact met ons op, waarna we direct een afspraak op locatie hebben ingepland.
Voorafgaand aan het gesprek hebben wij een korte analyse uitgevoerd van de mogelijkheden binnen het bestemmingsplan.
Daaruit bleek dat er enkele strijdigheden waren, die wij meteen met de opdrachtgever hebben besproken.
Zo wisten we samen dat het traject geen garantie op vergunningverlening bood, maar wel een kans als we het ontwerp goed zouden afstemmen op de omgeving.
De opdrachtgever besloot het risico te nemen en het plan door te zetten.
Met de archiefstukken uit ons vooronderzoek als basis zijn wij aan de slag gegaan met het ontwerp.
Aanvankelijk kozen we voor een traditioneel dakterrasontwerp, maar na overleg met de stedenbouwkundige van de gemeente Haarlem werd duidelijk dat er wél ruimte was voor realisatie — mits we het ontwerp zouden aanpassen naar een “daktuin”.
Dat advies hebben we enthousiast opgevolgd.
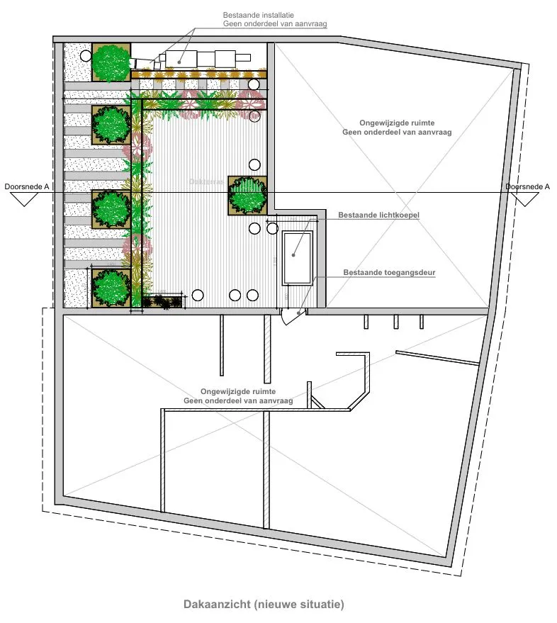
We ontwierpen een terras met cortenstalen plantenbakken, gevuld met jaarrond groene beplanting.
Deze bakken dienden niet alleen als valbeveiliging (minimaal 90 cm hoog), maar zorgden ook voor meer privacy, zowel voor de bewoners als voor de omwonenden.
De combinatie van veiligheid, esthetiek en privacy maakte het tot een ontwerp dat door alle partijen werd gewaardeerd.
Met behulp van een 3D-visualisatie wisten we de gemeente te overtuigen van het plan, waarna de vergunning werd verleend.

Resultaat.

Het resultaat is een stijlvolle daktuin die perfect past in het stedelijke beeld van de Haarlemse binnenstad.
De voordelen voor alle betrokkenen waren groot:
- De gemeente kreeg een fraaie toevoeging aan het stadsbeeld;
- De omwonenden behouden hun privacy;
- En de opdrachtgever kon dankzij de vergunde uitbreiding rendement blijven maken op zijn vastgoed.
Ook een dakterras nodig in Haarlem? Bouwplan 24 helpt je volledig bij het aanvragen van een bouwvergunning Haarlem van ontwerp tot indiening.
